リニューアル - 2023.06.01
ホームページをリニューアルしました。
今後はコチラのページをご覧ください。
スマホへも対応しています。










TOP HAIR aveue
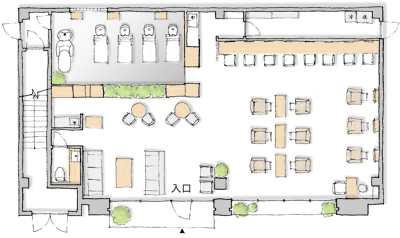
美容室の全面改装リニューアルです。
家具や天井・壁などに自然素材を使うことで、以前の新建材(クロスや塩ビタイル)でつくられたお店のイメージを一新しました。施主さんからは高級感を求められたため、少し意識した配色や素材の使い方をしています。
ライティング:MAXRAY 酒井大輔
家具一部:kataha
観葉植物:プランツショップ・ブーケ |

|
場所:愛知県刈谷市
工事:改装 (リノベーション)
用途:旧) 美容室 新) 美容室
建物:鉄骨造
|
面積:136平米 (41.2坪)
期間:3 + 1 = 4ヶ月 (設計+工事)
竣工:2008年06月
|
プレゼンのときのパース
> 一覧に戻る